Property Detail

1205 D

Ontario CA 91764

$575,000

Status: Active

Property Details

Description

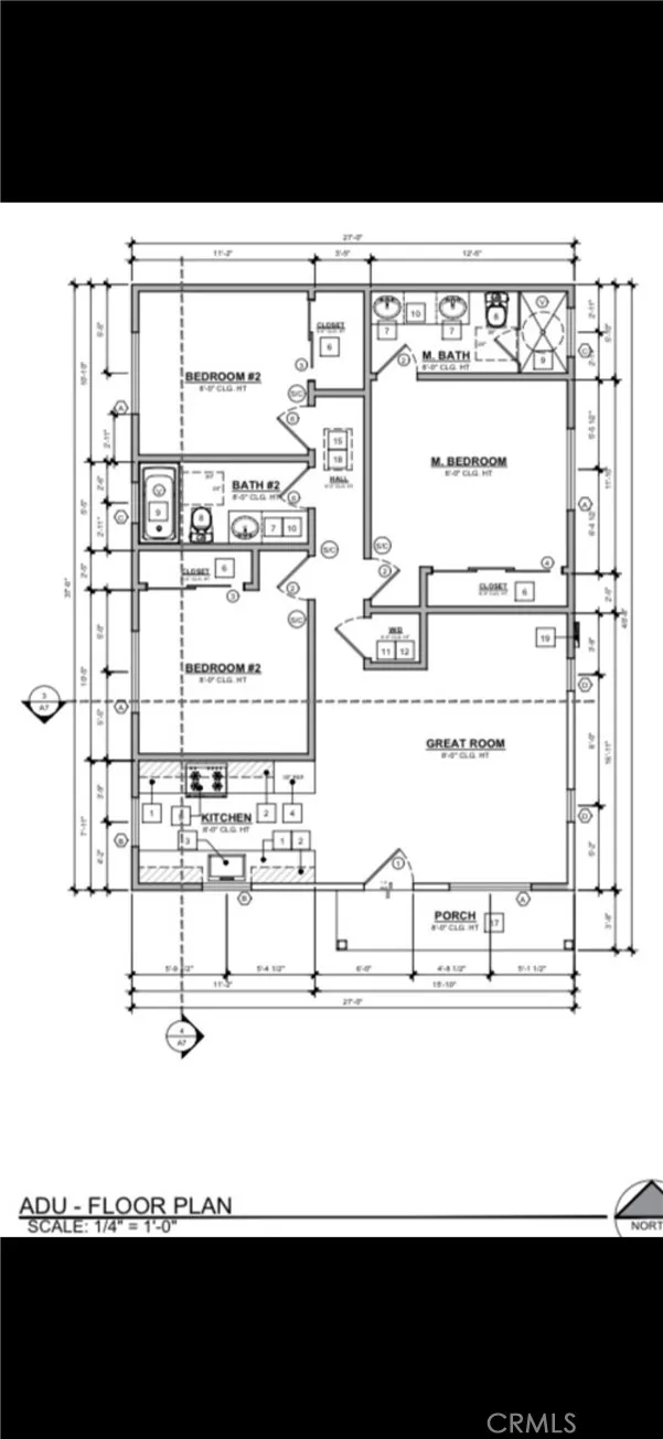
Development opportunity in Ontario with approved plans for a remodel, addition, and new Accessory Dwelling Unit (ADU). The project proposes expansion of the existing single-family residence to approximately 1,463 sq. ft., including a 635 sq. ft. addition and new covered entry. Plans also include conversion of the existing 400 sq. ft. detached two-car garage into a 998 sq. ft. detached ADU featuring 3 bedrooms and 2 bathrooms, along with a small addition and covered entry. The ADU is designed with separate water, electrical, and gas meters, providing flexibility for future occupancy or rental potential. This offering allows a buyer to acquire a property with plans already reviewed through the City process, significantly reducing development timelines.

Map Location

Listing provided courtesy of Ricardo Acevedo of Acevedo Real Estate Professionals. Last updated . Listing information © 2025 SANDICOR.

john Doe

Angelica Wallace

Real Estate Professional
CA DRE# 01393526
Inquire Now
Roya1234 Real estate 8:30 AM - 6:00 PM 8:30 AM - 6:00 PM 8:30 AM - 6:00 PM 8:30 AM - 6:00 PM 8:30 AM - 6:00 PM Closed Closed https://static.royacdn.com/Site-7090869b-51f0-485d-9bfd-50aecf7e0a48/HomepageAssets/headshot_wallace.jpg realtor # # # https://static.royacdn.com/Site-7090869b-51f0-485d-9bfd-50aecf7e0a48/HomepageAssets/headshot_wallace.jpg 01177812