Property Detail

28921 Saddle Circle

Castaic CA 91384

$933,990

Status: Active

Property Details

Description

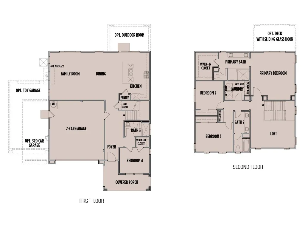
BRAND-NEW HOME! This beautiful home is nestled within the serene environment of Williams Ranch, a community designed with you and your lifestyle in mind. Live on a 430-acre master planned community located in Santa Clarita Valley between the Sierra Pelona Mountains, Castaic Lake Recreation Center Area, and directly adjacent to Valencia's Commerce Center. Come and be a part of a community that will have an exceptional recreation center, a junior Olympic sized swimming pool, an outdoor kitchen, an amphitheater, a wine pavilion, and clubhouse. Here you are surrounded by abundant open space, hiking trails, numerous pocket parks, large citrus orchards, and working vineyards. These amenities will exceed every expectation. This open-concept floor plan features 4 bedrooms, and 3 bathrooms. On the first floor you will find a convenient secondary bedroom and a full bath, providing flexibility and comfort for guests or family members. The spacious dining and great room areas offer ample space for entertaining or relaxing with loved ones. Upstairs, the second-floor features two additional secondary bedrooms, ensuring plenty of space for everyone to spread out and unwind. A generous loft area provides even more versatility, perfect for use as a playroom, home office, or additional living space. Completing the second floor is a dedicated laundry room, adding convenience to your daily routine. Additionally, this home boasts a luxurious primary bedroom, providing a serene retreat with its ensuite bathroom and ample closet space. Please note that the pictures are of decorated model home Mea

Map Location

Listing provided courtesy of Michael Brunette of Williams Homes Inc.. Last updated . Listing information © 2025 SANDICOR.

john Doe

Angelica Wallace

Real Estate Professional
CA DRE# 01393526
Inquire Now
Roya1234 Real estate 8:30 AM - 6:00 PM 8:30 AM - 6:00 PM 8:30 AM - 6:00 PM 8:30 AM - 6:00 PM 8:30 AM - 6:00 PM Closed Closed https://static.royacdn.com/Site-7090869b-51f0-485d-9bfd-50aecf7e0a48/HomepageAssets/headshot_wallace.jpg realtor # # # https://static.royacdn.com/Site-7090869b-51f0-485d-9bfd-50aecf7e0a48/HomepageAssets/headshot_wallace.jpg 01177812